趣のある古民家です
- 賃料
- 13.2万円
- 種別
- 一戸建
- 間取
- 8DK
- 敷金
- 3ヶ月
- 礼金
- 1ヶ月
-
- 所在地
- 佐賀県三養基郡みやき町大字簑原 中原古民家
- 交通
- JR長崎本線 中原駅 徒歩1400m 徒歩19分
物件詳細
| 築年月 | 1953 | 新築/中古 | |
|---|---|---|---|
| 面積 | 186.78m² | 計測方式 | |
| バルコニー | 向き | 南 | |
| 建物階数 | 地上2階 | 部屋階数 | 1・2階 |
| 建物構造 | 木造 | ||
| 敷地全体面積 | 677.51m² | 延べ床面積 | |
| 建築面積 | 186.78m² | ||
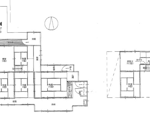
| 間取内容 |
DK8畳 1階 その他10畳 1階 和室10畳 1階 和室6畳 1階 和室6畳 1階 和室6畳 1階 和室4.5畳 2階 和室6畳 2階 玄関・炊事場の一部は土間 |
||
| 駐車場 | 取引態様 | ||
| 引渡/入居時期 | 相談 | 現況 | 空家 |
| 地目 | 宅地 | 用途地域 | 無指定 |
| 土地面積 | 677.51m² | 土地面積計測方式 | |
| 建ぺい率 | 60% | 容積率 | 200% |
| 土地権利 | 所有権 | 接道状況 | 一方 |
| 接道方向1 | 西 | 接道間口1 | |
| 周辺環境 |
中原小学校まで約1500m(徒歩約21分) 中原中学校まで約650m(徒歩約9分) ナフコ中原店まで約280m(徒歩約4分) ドラッグストアモリ中原店まで約800m(徒歩約12分) アスタラビスタみやき店まで約900m(徒歩約13分) 長浜ラーメン喜楽屋まで約100m(徒歩約2分) |
||
| 設備・条件 | 上水道・くみとり(前面道路に下水道配管あり) |
||
| 物件番号 | H-0009 | ||
| 自社物 | 自社物 | 状態 | 空有 |
| 特記事項 | ※現状賃貸とします ※業種によってはお断りさせていただく場合があります。 ※住居不可 | ||
趣のある古民家です
※物件掲載内容と現況に相違がある場合は現況を優先と致します。
Contact us
お問い合わせはこちらからお寄せください
お電話からのご予約・お問い合わせ
TEL0942-83-4271
営業時間 ■平日
月~金 9時から17時30分
第2・4・5土 9時から16時
月~金 9時から17時30分
第2・4・5土 9時から16時
定休日
第1・3土 日祭日
お盆・年末年始
第1・3土 日祭日
お盆・年末年始
Webからのご予約・お問い合わせ






























